CONTACT DETAILS
Property details last updated: 16 Nov, 2025

Fantastic new villa in the upper part of Competa - Competa

Location:
Property ref:
v1576
Price: 543.000€
NEW THIS WEEK
Click on the image to open up a larger version
Plot size
500 m² approx.
Living space
203 m² approx (constructed)
Bedrooms
3
Bathrooms
4
Living room
Open plan living/dining/kitchen - 94.90 m²
Air conditioning
pre-installation
Pool
yes
Garage
off road parking
Telephone
Fibre optic can be fitted
Electricity
yes
Water
yes
Additional info
teraces 85 m².
Energy Performance Certificate
Will be issued when completed
Name:
Email:
Phone:
Message:
 

OVERVIEW:

Set in the sought-after upper part of Cómpeta, this soon-to-be-completed modern villa offers contemporary comfort combined with thoughtful craftsmanship. Designed for durability and efficiency, the home features 3 spacious bedrooms, 4 bathrooms, and generous outdoor living with terraces of 85 m². With 203 m² of interior space on a 500 m² plot, including a private 24 m² pool, this property is ideal for those seeking a stylish permanent residence or an elegant holiday retreat.

DESCRIPTION:

Key Features

  • Modern new-build villa with 3 bedrooms, 4 bathrooms, and completion expected in 6 months
  • Private 24 m² pool with extensive sun terraces of 85 m², offering panoramic views
  • High-quality finishes throughout, including porcelain flooring, premium windows
  • Prime location in upper part of Cómpeta providing privacy, tranquillity and excellent accessibility

Situation and Outside Space
Situated on a peaceful, private 500 m² plot in the upper part of Cómpeta, this elegant villa is accessed via a printed concrete driveway leading to a secure motorized sliding gate. A separate electronically controlled pedestrian entrance offers added convenience and security.

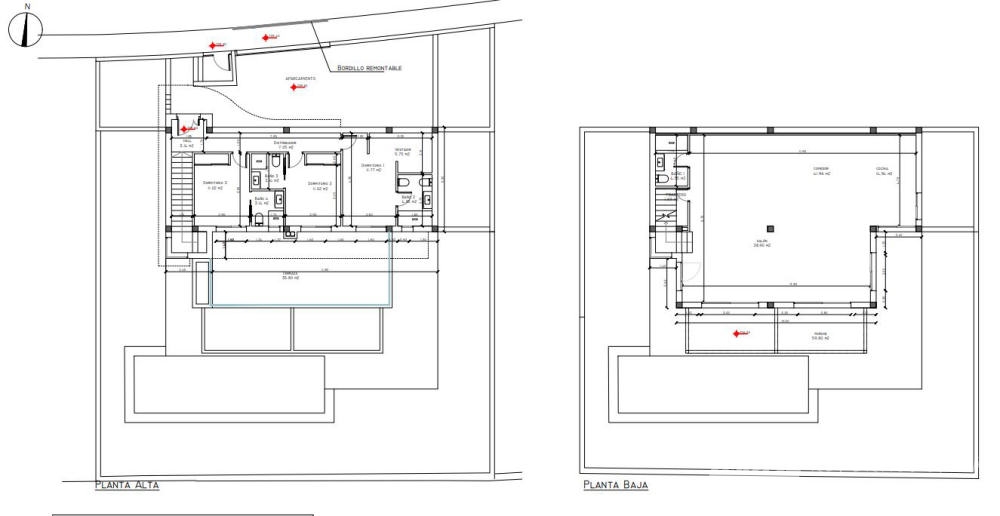
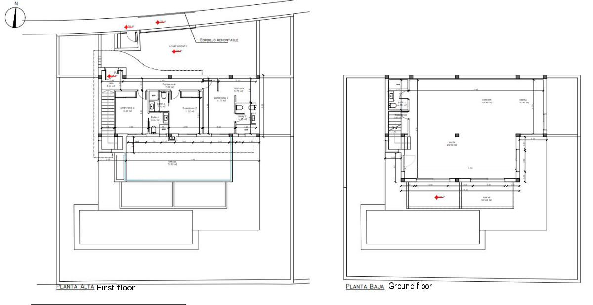
The outdoor living spaces are exceptional, featuring a large 50 m² terrace on the ground floor seamlessly connected to the open-plan living area, and a 35 m² terrace on the first floor accessible from the bedrooms. The private 24 m² pool, tiled and equipped with built-in stairs and LED lighting, is perfect for enjoying the beautiful Andalusian climate and mountain views.

Living Space
Spanning 203 m², the villa boasts a bright open-plan kitchen, dining, and living area on the ground floor, designed for both comfort and style. A guest toilet completes this level. Large windows fill the space with natural light while providing excellent insulation.

Bedrooms & Bathrooms

  • Three spacious bedrooms on the first floor, each with an en-suite bathroom
  • Well-appointed bathrooms featuring modern sanitary ware and high-quality ceramic finishes

Construction & Materials

  • Reinforced concrete structure with high-grade acoustic and thermal insulation
  • Inverted flat roofs with waterproofing, insulation, and premium finishes
  • Smooth plastered and painted interior walls
  • Porcelain flooring and natural stone stair treads, with quality ceramic finishes in bathrooms

Systems & Installations

  • Central air conditioning with multi-zone climate control
  • High-performance mechanical ventilation
  • Pre-installed irrigation system (final equipment not included)
  • Separate drainage systems for rain and wastewater
  • Full exterior and garden electrical pre-installation (lighting fixtures not included)

This villa represents a rare opportunity to own a brand-new, high-spec home in one of Cómpeta’s most desirable areas. Whether for permanent living or as a luxury retreat, it combines style, comfort, and efficiency in a stunning natural setting. Completion expected in 6 months — reserve now to personalize select finishes.

The property is located within the green area
Although we try to be as accurate as possible we can not guarantee the accuracy of given measurements.
Please check on viewing if you have any questions.
Do you want a remote video viewing of this property?
Cookie policy Private policy

Copyright 2025, www.sunsetproperties-spain.com